Servus an alle.
Nach langer langer Suche in diesem Forum hab ich einfach nichts passendes gefunden.
Und zwar:
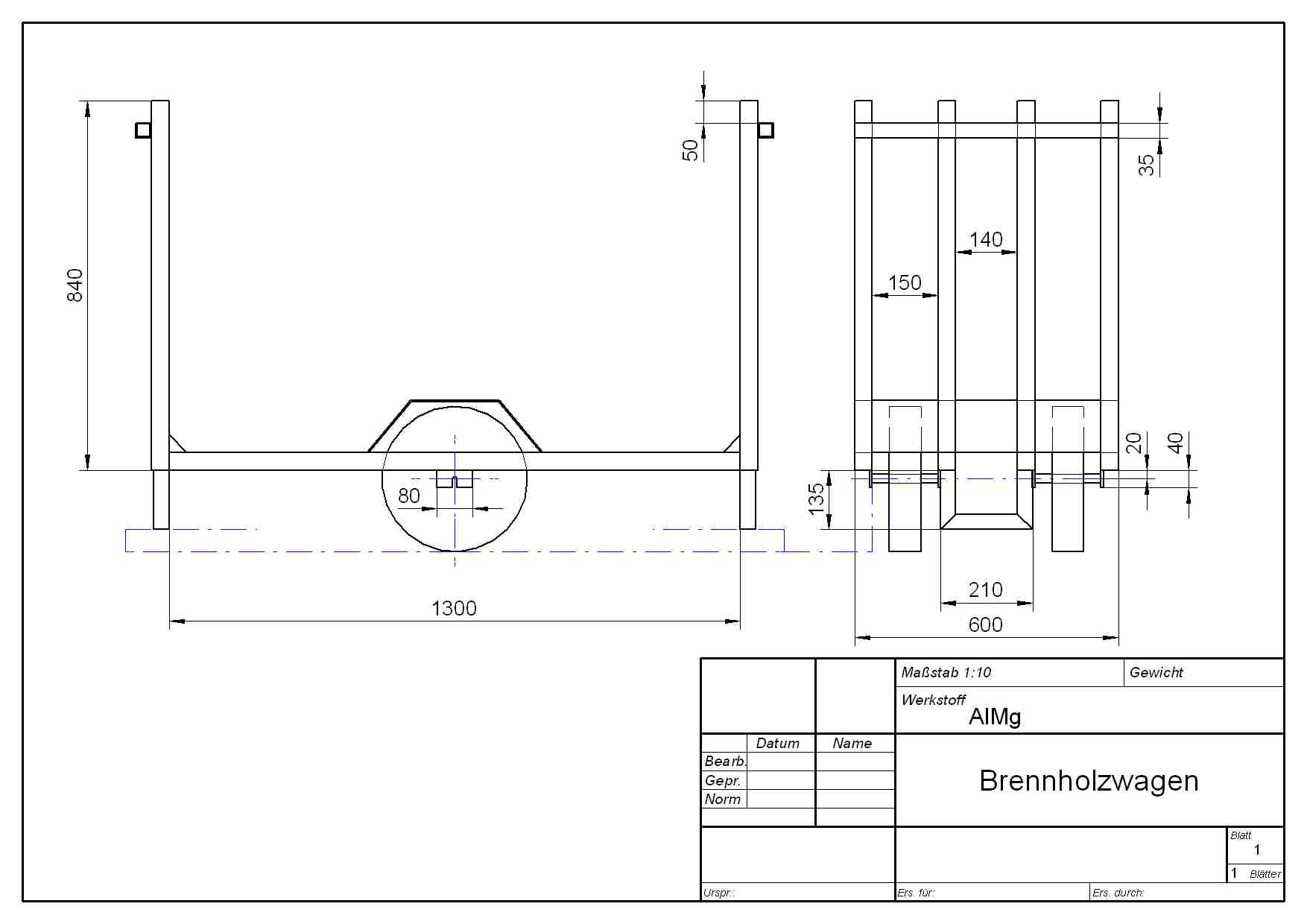
Um mein Scheitholz von der Scheune in den Heizraum zu befördern möchte ich mir eine Art Holzwagen bauen. 2-3 Stück, da ich eine Möglichkeit habe Holz im Wohnhaus bzw. im Keller zu parken.
Nun meine Frage:
Hat einer schon so etwas gebaut bzw. gibt es jemanden der mir an der Stelle weiterhelfen kann?
Es gibt Transportwagen..aber die sind teilweise bis zu 600 Euro teuer. Ich stelle mir so ne Art Paketwagen mit einer fixen Achse und vorne ein Rad das drehbar gelagert ist. Das Ganze mit Luftreifen, da ich über Schotter muß. Maße ca. 1,4 meter lang. ca. 0,6m breit und ca. 1,3 meter hoch.
Ich hoffe mal auf Eure Hilfe, denn in diesem Forum sind ja wirklich sehr fähige Leute unterwegs.
Find das Forum wirklich toll.
Einen schönen Gruß aus Nordbayern.
Euer Explorer
