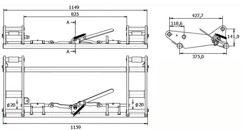
Ich habe einen Weidemann Hoflader Typ 1506 gekauft und möchte wegen Weiterverwendung vorhandener Geräte einen Euroadapter davor setzen.
Ich hab das bei meinem alten Radlader schon gemacht und damals die Maße mit dem Zollstock von einem Stoll Industriefrontlader abgenommen.
Das hat auch geklappt, aber nicht 100%...als ich das erste mal die neue Trima Erdschaufel angehängt habe musste ich mit dem "Dremel" die Löcher in der Schüppe etwas nacharbeiten, damit die Verriegelung sich schließen lässt. Habe jetzt mal gegoogelt nach den exakten Normmaßen, aber nichts Gescheites gefunden, wo klar und deutlich die Lage der drei Rundstangen zueinander herauszulesen ist.
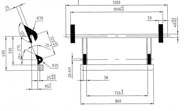
Könnt ihr mir mit den Maßen A,B,C weiterhelfen? Das wär super, dann hätte ich (und auch andere) es eindeutig.
Die Breitenmaße sind weniger kritisch- den Mittenabstand der Haken und Verriegelungslaschen kann man an jeder gekauften Euroschaufel gut nachmessen; zudem hat man da eh etwas Spiel...




