Wir haben eine kleine Nebenerwerbslandwirtschaft (Milchvieh, Bio). Da wir ja zum einen Biobetrieb sind und es zum anderen sowieso der alte Stall bzw die alten Ställe renovierungs bedürftig sind überlegen wir nun auf Laufstall umzusteigen, zumal da ja eine Halle bzw überdachung direkt vorm alten Stall vorhanden wäre.
Grundsätzlich bin ich jedem System gegenüber aufgeschlossen, wir hätten auch selber Stroh für Tiefstreu oder Tretmist.
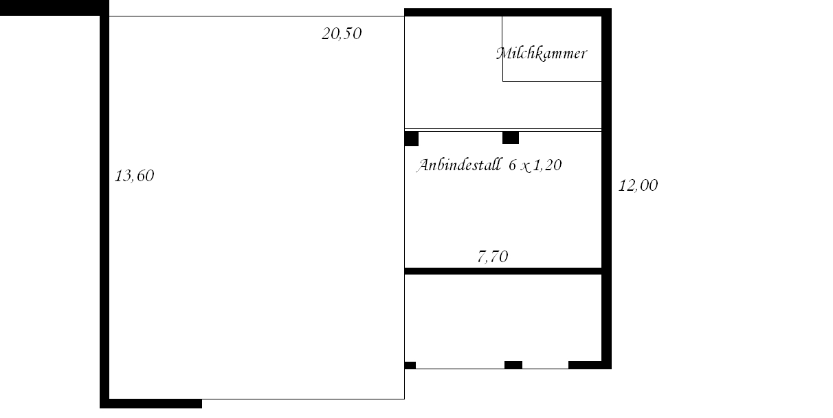
Ich habe eine Skizze gemacht, hab da auch schon eine Idee will mir aber noch n paar andere Meinungen einholen bevor ich mich zu sehr auf eine Variante fixiere.
Wir haben derzeit 12 Kühe plus Nachzucht für die sollte mindestens Platz sein da wir ein bischen aufstocken wollen / müssen.
Also vll hat jemand vorschläge ?
PS: ich entschuldige mich für die schlechte, nicht maßstabsgetreue skizze, aber mehr geht mit paint ned
