hallo,
ich will mir einen Meterholzwagen bauen und binn mir aber noch nicht ganz schlüssig über die Dimensionierung.
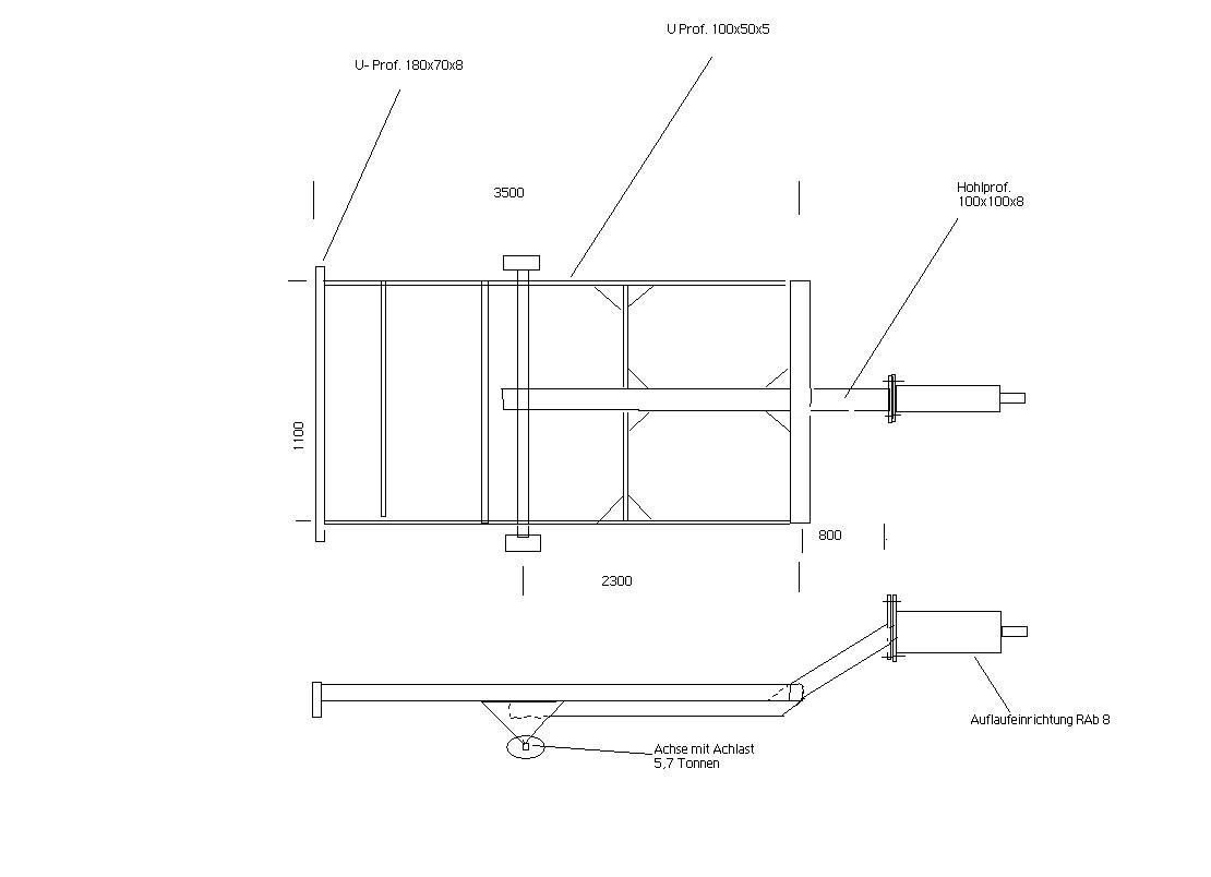
Hab eine 6 Tonne Rückm. Achse und die passende Auflaufeinrichtung. Die Ladefläche soll 3,5 Meter und das Deichselrohr hat noch mal 1,4 Meter.
Nun wollte ich als Deichselrohr bzw Vorne Quer 100x100x6 er Rohr, Für die beiden Längträger der Ladefläche HEB 100 nehmen und Hinten UNP 180 nehmen.
Quer zur ÖLadefläche 3 oder 4 mal Hohlprofiel 80x40.
Reich die Auslegung oder würde es jemand anderst machen?
Gruß samuel

