ich möchte in meiner Scheune evtl. eine Werkstattgrube bauen um mal am PKW oder Wohnmobil einen Ölwechsel zu machen, abschmieren,......
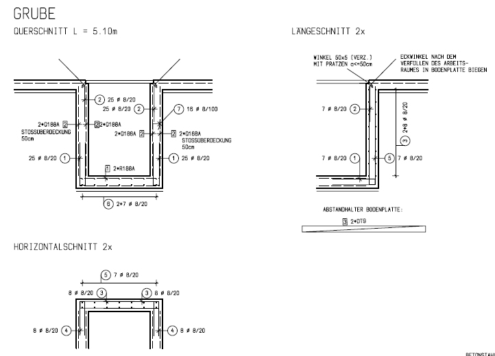
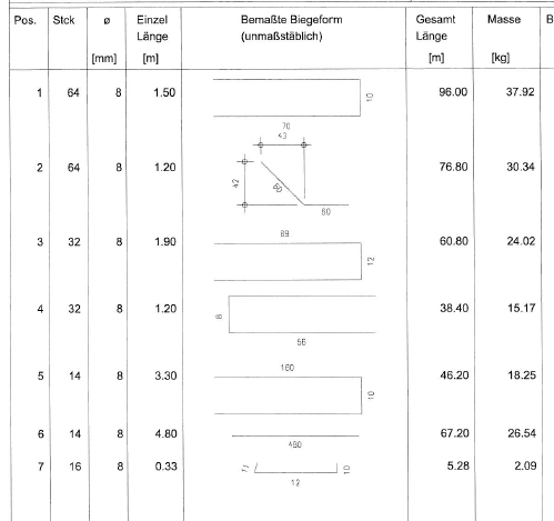
Nun stellt sich die Frage nach der Größe. Was habt Ihr gebaut? Wandstärken, Bodenstärke, Armierung, Abdichtung Bodenplatte gegen Wände, wie abdecken,.......
