Hallo, ich bin neu im Forum.
Durch mehrere Youtube Videos bin ich auf dieses Spaltsystem gestoßen, nun bin ich an der Planung eines Eigenbaus.
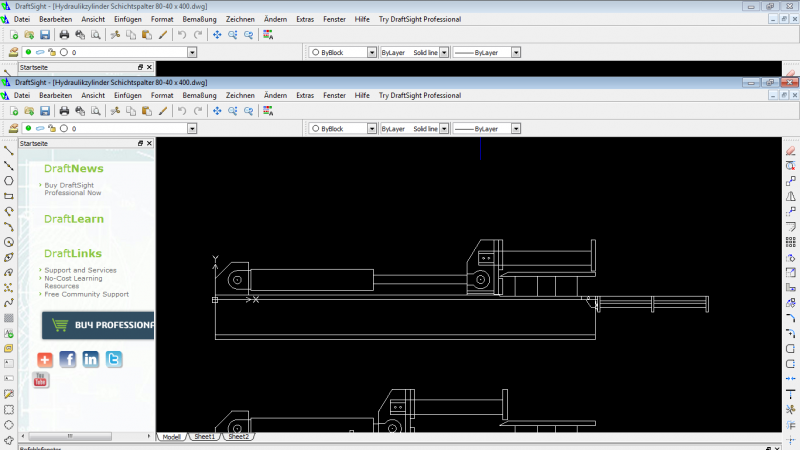
Vorgaben:
-Antrieb über Zapfwellenpumpe (Schlepperleistung 40PS)
-Spaltgutlänge 400mm
-20t Spaltkraft durch zwei Hydraulikzylinder
-Hydraulikzylinder 80/40mm je 10t Druck bei 200bar
-Scheitgröße 90/80mm
-Grundrahmen aus I-Träger (evtl. Heb 200)
-Stammheber
Bei der Auslegung der Hydraulik habe ich bisher leider nur theoretisches Wissen.
Für konstruktive Vorschläge bin ich immer offen.
