Ich lasse mir das billige Holzrahmen- Kit schicken:
Hello Denis,
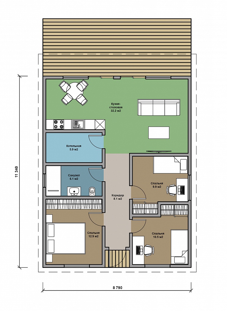
please make me an offer for the 66 m2 bad hall house.
I would provide a concrete floor slab with underfloor heating.
I would build the house myself.
I take the cheap Karkas variant
So I only need the kit with windows, entrance door, facade cladding, cladding of the roof overhangs, gutter.
I would cover the roof with sheet metal that I already have.
I selected the following in the configurator:
entrance door
Double sheet made of metal with insulation, powder-coated.
25000 R.
Windows
PVC profile 3-chamber REHAU "Euro-Design" Germany white, fittings "ROTO-NT" Germany, double-chamber double glazing 4-10-4-10-4, blinds and swing-out shutters depending on the project, drainage.
63000 R.
Facade decoration (siding)
Vinyl siding wood plastic masters.
223500 R.
Finishing base
Nailite panels, low tide.
39600 R.
Hanging roof overhangs
Plastic heater.
36000 R.
I drainage system
Metal MP Prestige. 37 700 R
The configurator shows me a price of 818800 rubles.
Please also give me the assembly instructions, perhaps as a video.
Sind dann so 10 000,-
Vielleicht 1500,- Lieferung
Bodenplatte 1000,-
Bin ich bei 12500,- und die Hühner habens warm.
https://www.tmhs.ru/projects/detail.php?ID=21636#anc
